Skip links

ΣΙΝΑ 60

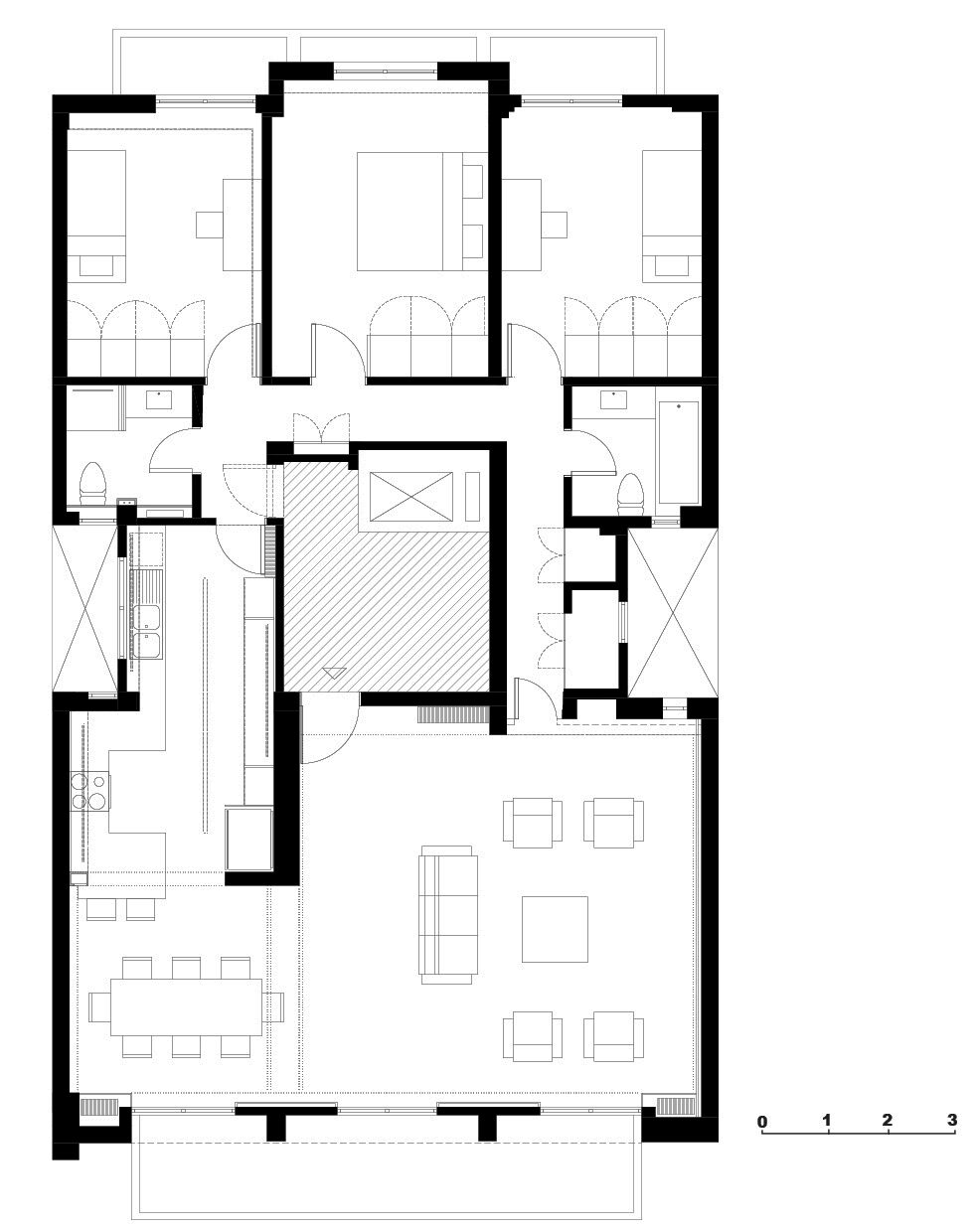
Το έργο αφορά την ανακαίνιση ενός αστικού διαμερίσματος στο κέντρο της Αθήνας. Η κεντρική ιδέα της πρότασης επικεντρώνεται στη διατήρηση και ανάδειξη του ιδιαίτερου αστικού χαρακτήρα της κατοικίας προτείνοντας παρόμοια υλικά και υφές με τα υπάρχοντα. Ταυτόχρονα, επειδή πρόκειται για εμπορική χρήση του διαμερίσματος χρησιμοποιείται ένα συνδυασμός ασπρόμαυρου – ουδέτερου ογκοπλαστικού αρχιτεκτονικού λεξιλογίου.
Ταυτόχρονα, επειδή πρόκειται για εμπορική χρήση του διαμερίσματος χρησιμοποιείται ένα συνδυασμός ασπρόμαυρου – ουδέτερου ογκοπλαστικού αρχιτεκτονικού λεξιλογίου.

Project Info

program: urban / interior

status: completed

year: 2021

area: 143 sqm

Project Team

author: Dimitra Riza

junior architect: K. Sako

construction: Pavlogiannis – Taxeidis construction company

photography: Thomas Gerasopoulos

Explore
Drag